3 locali con grande giardino privato

In vendita
Lomazzo - via del seprio, 65
228.000 €
3 locali
Categoria
88
m2
2
Camere
2
Bagni
2
Box
Descrizione
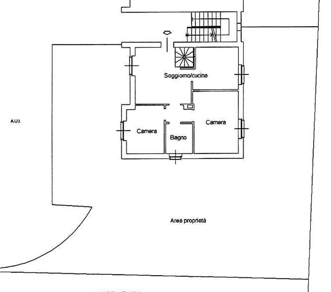
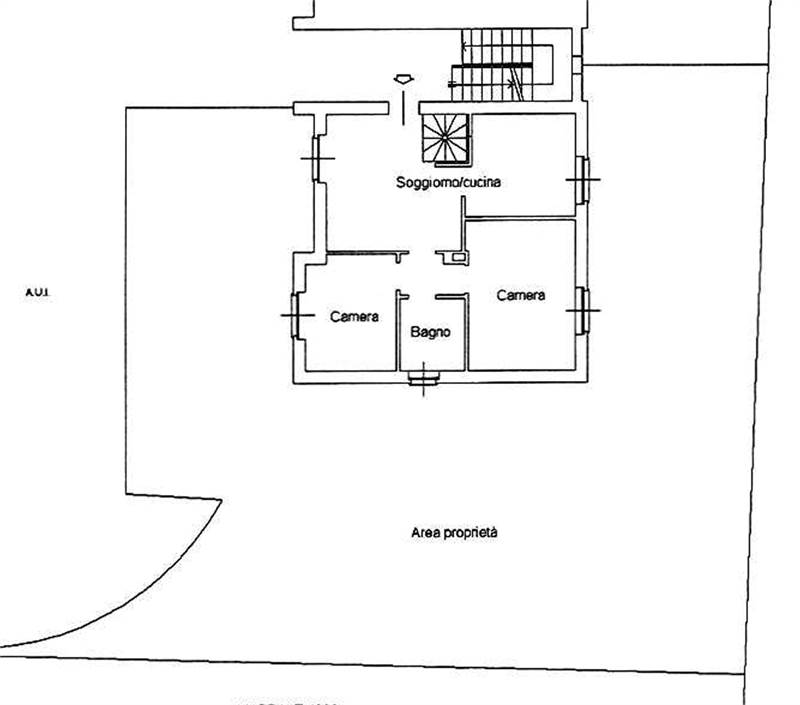
L'appartamento in vendita nel comune di Lomazzo, situato al piano terra, offre un'ottima soluzione abitativa , in piccola palazzina di sole quattro famiglie ed è composto da tre locali, per un totale di 88 metri quadrati. L'immobile si presenta in ottimo stato esternamente con rifiniture in mattoncino a vista ed è stato riammodernato recentemente al suo interno.

La zona giorno è composta da un soggiorno luminoso e una cucina abitabile attualmente parzialmente a vista sul soggiorno, mentre la zona notte dispone di due camere da letto spaziose e ben illuminate ed un servizio con doccia.
Al piano interrato raggiungibile con scala in legno troviamo un locale da adibire a studio/taverna ed una comoda lavanderia.

L'appartamento è dotato di riscaldamento autonomo a pavimento con caldaia a condensazione.
Fiore all'occhiello di questa soluzione è il grande giardino privato con esposizione su tre lati, sempre soleggiato.

La posizione strategica dell'immobile consente di raggiungere facilmente i principali servizi e le infrastrutture della zona, rendendolo una scelta ideale per chi desidera vivere in un contesto residenziale tranquillo e ben servito.

Possibilità di acquistare gli arredi attualmente presenti.

Questo immobile è proposto in esclusiva commerciale da Migliorcasa di Lauro Massimo "Il lusso di potersi fidare"!
Caratteristiche principali
Codice:
V002105
Città:
Lomazzo
Categoria:
3 locali
Spese condominiali:
800 € / anno
Locali:
3
Camere:
2
Bagni:
2
Mq:
88
Box:
2
Mq Box:
23
Mq Giardino:
300
Piano:
Terra
Anno:
2009
Classe energetica:
E
133,99
Stato Immobile:
Ottimo
Grado:
Medio
Posizione:
Periferia
Panorama:
Vista Giardino
Orientamento:
Est Sud Ovest
Lati Liberi:
3
Giardino:
Privato
Arredi:
Possibilità
Tipo Soggiorno:
Soggiorno
Tipo Cucina:
Abitabile
Riscaldamento:
Autonomo
Tipo Riscaldam.:
Caldaia
Tipo Impianto:
Pavimento
Fonte Energetica:
Gas
Raffrescamento:
Split
Infissi:
Legno Doppio Vetro
Serramenti:
Ottimo
Persiana:
Persiana Legno
Accessori
Antifurto
Aria Condizionata
Cancello Elettrico
Doppi Vetri
Impianto Satellitare
Lavanderia
Passaggio Automobilistico
Passaggio Pedonale
Porta Blindata
Rete Dati
Veranda
Video Citofono
Mappa
Richiedi informazioni
Invia
Agenti venditori
Massimo Lauro
Massimo Lauro
Federica Molino
Federica Molino
6 utenti stanno vedendo questo annuncio
Cookie preference